TerraDwell™:
Thoughtfully architectural, efficiently buildable.

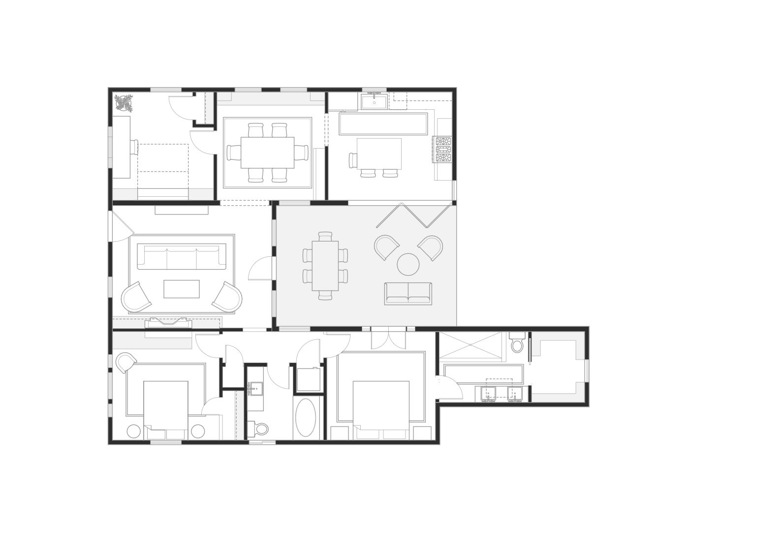
TerraDwell™ House No. 1: A thoughtfully designed backyard bungalow that balances timeless character with practical, buildable design.

TerraDwell™ is a collection of architecture-driven small homes designed by Terramade.

In neighborhoods filled with historic homes, many ADUs feel disconnected. We designed House No. 1 to offer a better balance: a small home that is efficient to build while still feeling grounded, proportioned, and intentional.

Beautiful

✳︎

Functional

✳︎

Buildable

✳︎

Beautiful ✳︎ Functional ✳︎ Buildable ✳︎

TerraDwell™ Principles

ARCHITECTURAL CHARACTER
Proportions, rooflines, and subtle details inspired by historic homes

PRACTICAL CONSTRUCTION
Designed for straightforward building with realistic budgets in mind

MODERN LIVING
Flexible layouts filled with natural light, designed for how people live today

Stress-tested through our own ADU build.

We’re developing TerraDwell™ while designing and building our own backyard ADU behind our 1912 Arts & Crafts home.

This process has helped us refine decisions around cost, constructability, and real-life form and function.

House No. 1

House No. 1
$199.00

A compact bungalow designed to feel at home in historic neighborhoods, with generous windows, simple rooflines, and efficient planning.

FROM
$299

Need something custom?

We offer limited site-specific design services for homeowners who want to adapt a TerraDwell™ plan or develop a fully custom small home.